• 专利申请
    2023-06-26
  • 公布公告
    2023-11-17
  • 授权日期
    2023-11-17
  • 终止
    2033-11-14
一种车载玻璃搬运夹具
一种车载玻璃搬运夹具
* 专利信息仅供参考,不具有法律效力。 有效专利
CN202321652867.6 2023-06-26 B65G49/06 {{ classMap["B65G49/06"] }}
安徽嘉航电子科技有限公司 查看申请人名下所有专利
安徽省阜阳市颍上县慎城镇经开区345国道与高速连接线交叉口123综合产业园9栋
专利分类项目
专利注册信息
初审公告期号 2023-06-26 初审公告日期 2023-11-17
注册公告期号 2023-11-17 注册公告日期 2023-11-17
专用权期限 2023-11-17 - 2033-11-14 专利类型 实用新型
代理组织机构 合肥东邦滋原专利代理事务所 查看该机构代理的所有专利
专利介绍
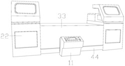
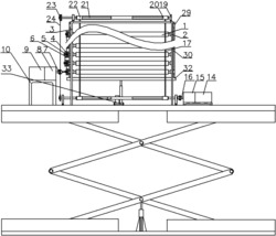
本实用新型提供一种车载玻璃搬运夹具,包括转动座及安装在转动座下端的搬运架、分布设置在搬运架上的吸附组件,所述吸附组件包括中空的压力传感器、滑动安装在压力传感器中部的导管。搬运架转动安装在转动座上,并通过驱动组件调节搬运架的方向,以便于对接车载玻璃,当机械臂控制搬运架下降到合适位置后,调节气缸控制压力传感器下降,压力传感器通过弹簧推动吸嘴下降并抵住车载玻璃,当压力传感器通过检测弹簧反馈的压力至合适范围后,停止继续下降,每组吸附组件通过调节气缸单独控制,所以可以沿车载玻璃的弧形面进行自动高度调节,确保每组吸附组件都能与车载玻璃贴合吸附,提高车载玻璃搬运时候的稳定性。
法律进度
  • 2023-11-17 授权 ...

同类专利

咨询该专利

您还可以
推荐专利
{{ v.name }}
取 消 确 定