• 专利申请
    2014-12-14
  • 公布公告
    2016-08-17
  • 授权日期
    2016-08-17
  • 终止
    2026-08-15
一种变磁力线分布比例电磁铁
一种变磁力线分布比例电磁铁
* 专利信息仅供参考,不具有法律效力。 有效专利
CN201410768552.7 2014-12-14 H01F7/08 {{ classMap["H01F7/08"] }}
成都大学 查看申请人名下所有专利
四川省成都市外东十陵镇
专利分类项目
专利注册信息
初审公告期号 2014-12-14 初审公告日期 2016-08-17
注册公告期号 2016-08-17 注册公告日期 2016-08-17
专用权期限 2016-08-17 - 2026-08-15 专利类型 发明授权
代理组织机构 成都科奥专利事务所 查看该机构代理的所有专利
专利介绍
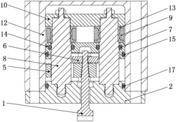
本发明公开了一种变磁力线分布比例电磁铁,包括导套(2)、磁轭(3)、控制线圈(4)、隔磁环(5)、盆形极靴(6)、阀接口块(7)、推杆(8)和动铁芯(10),所述阀接口块(7)和动铁芯(10)的工作面分别为内凹的曲线回转面和外凸的曲线回转面,两曲线回转面的回转轴均沿动铁芯轴线,其母线均为二次曲线且形状相似,当动铁芯(10)处于行程的最大位置时其与阀接口块(7)的接触面为一窄环面。本发明在不改变现行比例电磁铁的基本结构、外形和接口尺寸的前提下,能显著提高比例电磁铁动线性性能,另外,由于动铁芯在行程的最大位置时与阀接口块工作面的接触面积很小,因此可取消现行比例电磁铁所用的隔磁垫而使结构简化。
法律进度
  • 2016-08-17 授权 ...

  • 2015-04-29 实质审查的生效 IPC(主分类): H01F 7/08 专利申请号: 201410768552.7 申请日: 2014.1 ...

  • 2015-04-01 公开 ...

同类专利
  • 一种基于电励磁的湿式双磁柱式电磁铁

咨询该专利

您还可以
推荐专利
{{ v.name }}
取 消 确 定