• 专利申请
    2023-12-13
  • 公布公告
    2024-04-23
  • 授权日期
    2024-04-23
  • 终止
    2034-04-21
一种电缆线折弯器
一种电缆线折弯器
* 专利信息仅供参考,不具有法律效力。 有效专利
CN202311710582.8 2023-12-13 B21F1/00 {{ classMap["B21F1/00"] }}
福建万嘉宝线缆有限公司 查看申请人名下所有专利
福建省福州市连江县丹阳镇花园村下溪路44号
专利分类项目
专利注册信息
初审公告期号 2023-12-13 初审公告日期 2024-04-23
注册公告期号 2024-04-23 注册公告日期 2024-04-23
专用权期限 2024-04-23 - 2034-04-21 专利类型 发明授权
代理组织机构 北京启航嘉知识产权代理有限公司 查看该机构代理的所有专利
专利介绍
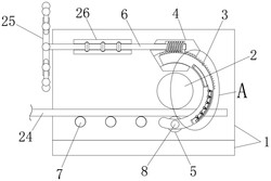
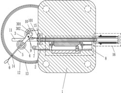
本发明公开了一种电缆线折弯器;涉及电缆线折弯用具技术领域,包括主杆,主杆前端面的下端水平固接有固定环,固定环上端水平设有移动环,移动环后端面抵接在主杆前端面上,主杆前端设有转动组件、定位组件和调节组件;本发明通过内弧形托板和半圆固定板来承托电缆线,再通过弧形定位板将电缆线进行固定,便于适应各种电缆线的固定;再通过副杆的移动来控制外弧形托板的移动,进而将电缆线进行折弯;通过手轮转动控制大螺杆的转动,进而控制移动座的移动方向,从而将控制副杆和主杆之间的距离;通过自锁箱内部的蜗轮蜗杆机构,防止大螺杆自己转动,便于固定副杆与主杆之间的距离,从而长时间固定电缆线,减少不必要的体力消耗,提高工作效率。
法律进度
  • 2024-04-23 授权 ...

  • 2024-01-12 公开 ...

同类专利

咨询该专利

您还可以
推荐专利
{{ v.name }}
取 消 确 定