• 专利申请
    2020-12-17
  • 公布公告
    2021-08-24
  • 授权日期
    2021-08-24
  • 终止
    2031-08-22
一种线路板切割除尘机台
一种线路板切割除尘机台
* 专利信息仅供参考,不具有法律效力。 有效专利
CN202023058210.6 2020-12-17 B26D1/18 {{ classMap["B26D1/18"] }}
信丰汇芯线路科技有限公司 查看申请人名下所有专利
江西省赣州市信丰县工业园西区绿源大道南侧(信达电路科技园3栋)
专利分类项目
专利注册信息
初审公告期号 2020-12-17 初审公告日期 2021-08-24
注册公告期号 2021-08-24 注册公告日期 2021-08-24
专用权期限 2021-08-24 - 2031-08-22 专利类型 实用新型
代理组织机构 苏州润桐嘉业知识产权代理有限公司 查看该机构代理的所有专利
专利介绍
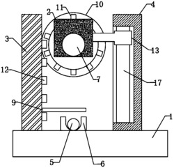
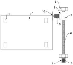
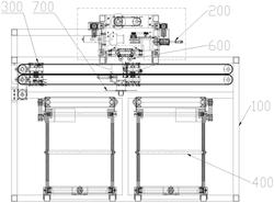
本实用新型涉及PCB板生产领域,尤其涉及一种线路板切割除尘机台,包含固定在地脚上的操作台,所述操作台两侧对称固定有立板,两块所述立板中间固定有多根滑杆,所述滑杆上固定有与滑杆滑动连接的滑块,所述滑块通过移动机构在滑杆上滑动,所述移动机构包括固定在两块立板中间丝杆,所述丝杆由驱动电机驱动转动,所述丝杆穿过前述滑块并与滑块螺纹连接,所述滑块上还固定有切割电机,所述切割电机通过转轴固定连接有切割轮,所述操作台上方还固定有垂直滑杆的齿条及多根滑轨,所述滑轨上固定有与滑轨滑动连接的滑台,所述滑台上固定有移动电机。切割产生的粉尘排入到自来水内被自来水吸收,不会产生粉尘污染,不会威胁操作员的健康。
法律进度
  • 2021-08-24 授权 ...

同类专利

咨询该专利

您还可以
推荐专利
{{ v.name }}
取 消 确 定