• 专利申请
    2020-07-13
  • 公布公告
    2021-07-30
  • 授权日期
    2021-07-30
  • 终止
    2031-07-28
一种板材加工用固定压紧装置
一种板材加工用固定压紧装置
* 专利信息仅供参考,不具有法律效力。 有效专利
CN202021361340.4 2020-07-13 B27C5/02 {{ classMap["B27C5/02"] }}
乾亨贸易(杭州)有限公司 查看申请人名下所有专利
浙江省杭州市余杭区闲林街道雅乐国际花园17-16室
专利分类项目
专利注册信息
初审公告期号 2020-07-13 初审公告日期 2021-07-30
注册公告期号 2021-07-30 注册公告日期 2021-07-30
专用权期限 2021-07-30 - 2031-07-28 专利类型 实用新型
代理组织机构 浙江专橙律师事务所 查看该机构代理的所有专利
专利介绍
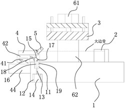
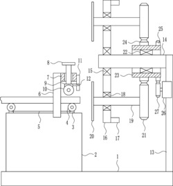
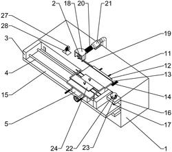
本实用新型公开了一种板材加工用固定压紧装置,包括支撑台,所述支撑台右端上侧竖直固定连接有第一电动伸缩杆,所述第一电动伸缩杆的下端水平固定连接有压板,所述压板下端面和所述支撑台上端面之间配设有激光感应开关,所述压板上端面前后侧均水平固定连接有第二电动伸缩杆,所述第二电动伸缩杆连接有夹板。本实用新型支撑台上摆放着板材且板材端头穿插在压板下方时,激光感应开关便产生感应使得第一电动伸缩杆伸长,从而使得压板下降,将板材稳固压在支撑台上,并且第二电动伸缩杆便沿着条形滑槽相对夹板进行上下移动,而在激光感应开关触发时,第二电动伸缩杆进行收缩,使得夹板向压板中间位置收合,从而将压板压住的板材的前后侧夹住。
法律进度
  • 2023-10-31 专利实施许可合同备案的生效 IPC(主分类): B27C 5/02 合同备案号: X2023330000776 专利号: ZL 20202 ...

  • 2023-10-27 专利实施许可合同备案的生效 IPC(主分类): B27C 5/02 合同备案号: X2023330000772 专利号: ZL 20202 ...

  • 2023-09-22 专利权的转移 登记生效日: 2023.09.05 专利权人由乾亨贸易(杭州)有限公司变更为周陈科 地址由311100 浙江省 ...

  • 2021-07-30 授权 ...

同类专利

咨询该专利

您还可以
推荐专利
{{ v.name }}
取 消 确 定