• 专利申请
    2018-11-12
  • 公布公告
    2019-02-15
  • 授权日期
    2022-08-09
  • 终止
    2029-02-12
一种农用花生清洗机
一种农用花生清洗机
* 专利信息仅供参考,不具有法律效力。 有效专利
CN201811338408.4 2018-11-12 A23N12/02 {{ classMap["A23N12/02"] }}
李春雪 查看申请人名下所有专利
江苏省南京市玄武区龙蟠中路29号珠江路都市经济园A10-2室
专利分类项目
专利注册信息
初审公告期号 2018-11-12 初审公告日期 2019-02-15
注册公告期号 2022-08-09 注册公告日期 2022-08-09
专用权期限 2019-02-15 - 2029-02-12 专利类型 发明公开
代理组织机构 --
专利介绍
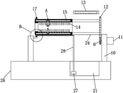
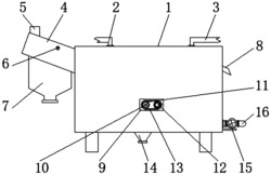
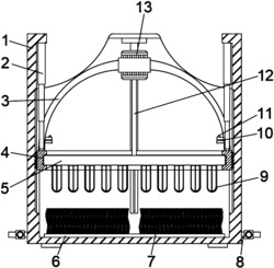
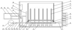
本发明涉及一种清洗机,尤其涉及一种农用花生清洗机。因此,本发明的技术问题为:提供一种能够让人们更加轻松、能够提高清洗效率的农用花生清洗机。技术方案:一种农用花生清洗机,包括有支架、横板、电机、清洗箱、隔板、轴承座、转轴、六菱形杆、六菱形套筒、滑动座等;支架下部连接有横板,横板顶部中间栓接有电机,支架顶部连接有用于装清水的清洗箱,清洗箱内下部水平固接有隔板,隔板中部嵌入式安装有轴承座,轴承座内安装有转轴。本发明通过电机顺时针转动能够使清洗箱内的清水对花生进行清洗,则无需人们手动对花生进行清洗,从而能够让人们更加轻松,并且能够提高清洗效率;通过喷水机构能够使水喷在花生上,使得花生能够被清洗的更加干净。
法律进度
  • 2024-07-09 专利权的转移 登记生效日: 2024.06.24 专利权人由李春雪变更为合肥智慧龙机械设计有限公司 国家或地区由中国变更为中 ...

  • 2022-08-09 授权 ...

  • 2019-03-12 实质审查的生效 IPC(主分类): A23N 12/02 专利申请号: 201811338408.4 申请日: 2018. ...

  • 2019-02-15 公开 ...

同类专利

咨询该专利

您还可以
推荐专利
{{ v.name }}
取 消 确 定